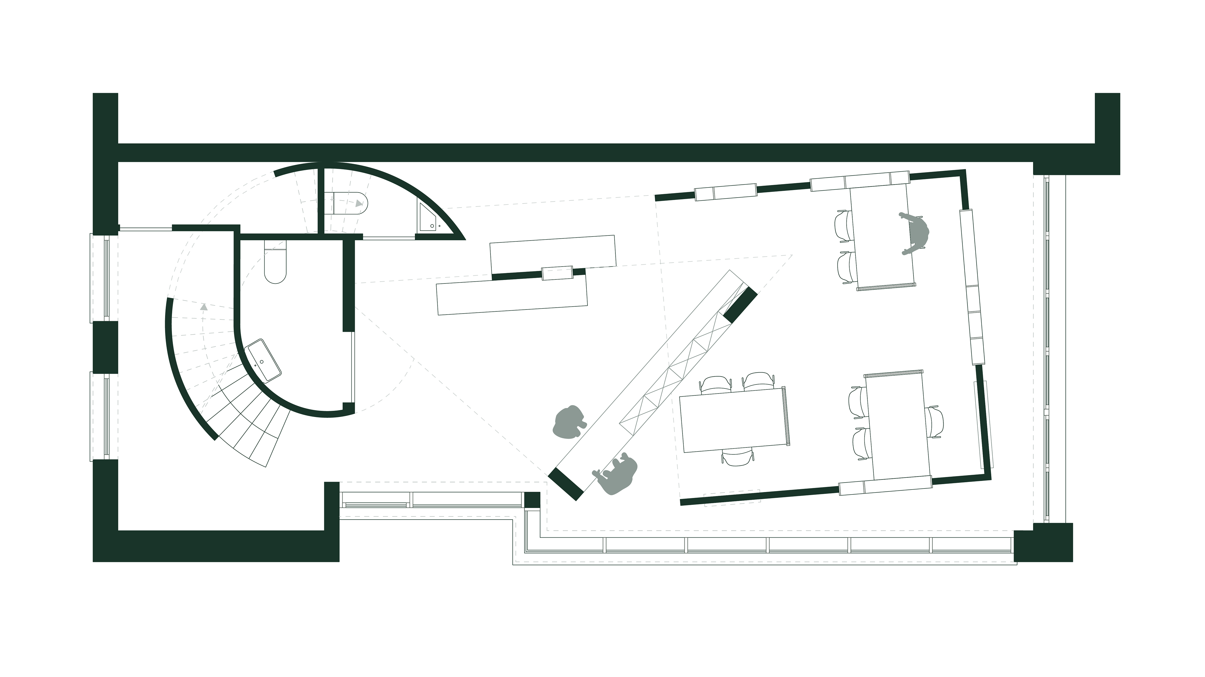
Het ontwerp voor dit adviesbureau vertrekt vanuit de basisvormen cirkel, driehoek en vierkant, die op een speelse manier met elkaar verbonden zijn in de ruimte. Alle elementen zijn volledig demonteerbaar en kunnen elders opnieuw worden opgebouwd, wat het ontwerp flexibel en toekomstbestendig maakt. Hervorm is meer dan een interieur: het is een statement over hoe we ruimte en materialen kunnen herdenken. Het project nodigt uit tot vernieuwing met respect voor wat er is, en toont hoe vorm en structuur richting kunnen geven aan een duurzame toekomst.
Back to Top